Köpenicker 79 | WE36
Gemütliche Altbauwohnung in ruhiger Lage
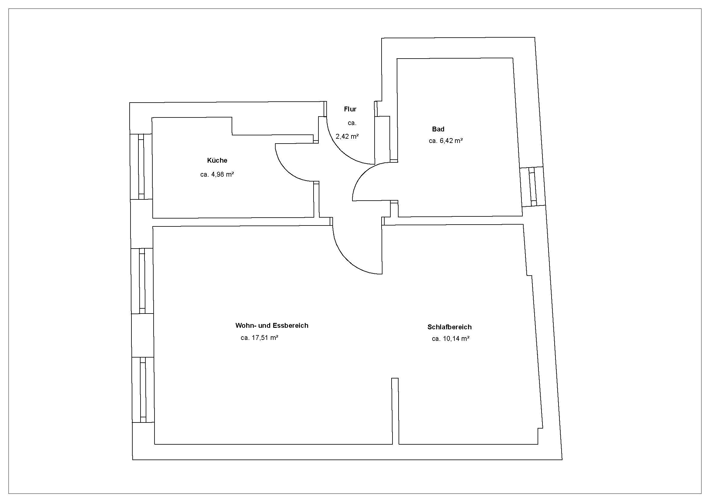
Wohnung
Die großzügige 1-Zimmerwohnung befindet sich im 2. OG des Hinterhauses eines Altbaus aus 1900 und ist zur Hofseite ausgerichtet. Mit einer Wohnfläche von ca. 41,47 m² ist die Wohnung perfekt für eine bis zwei Personen geeignet.
Das gut 27 m² große Zimmer ist der zentrale Raum der Wohnung und bietet einen offenen Wohn- und Essbereich, der durch zwei große Fenster viel Tageslicht hereinlässt, und einen optisch abgetrennten Schlafbereich.
Die Küche bietet ausreichend Platz für eine gut geplante Einbauküche mit kleiner Sitzecke. Das Badezimmer hat ein Fenster, eine Badewanne und ist recht großzügig angelegt.
Wohn-, Ess- und Schlafbereich sowie die Küche sind ruhig zum Hof gelegen. Dank des durchdachten Grundrisses lässt sich hier Ihr kompakter Wohntraum verwirklichen.
Grundriss
Lagebeschreibung
Die Köpenicker Straße 79 verbindet die lebendigen Bezirke Friedrichshain, Kreuzberg und Mitte und vereint das Beste aus diesen begehrten Lagen. Die zentrale Lage bietet Nähe zur Spree, dem Wirtschaftszentrum Mediaspree und einer inspirierenden Kiezkultur mit international bekannten Clubs wie Tresor, Kit Kat Club und Kater Blau. Geschäfte des täglichen Bedarfs sind in Gehweite vorhanden. Einkaufsmöglichkeiten, Restaurants und Dienstleistungsunternehmen bereichern die Nachbarschaft und tragen zur Vielfalt der Kiezkultur bei. Die Nähe zu Berliner Sehenswürdigkeiten wie dem Fernsehturm oder der East Side Gallery ist ein weiterer Pluspunkt. Die Anbindung an den öffentlichen Nahverkehr ist hervorragend: Der U-Bahnhof Heinrich-Heine-Straße (U8) ist direkt vor der Haustür, der U-Bahnhof Märkisches Museum (U2) nur 5 Gehminuten und der S- und U-Bahnhof Jannowitzbrücke nur 6 Gehminuten entfernt. Diese Lage bietet nicht nur ein pulsierendes Stadtleben, sondern auch eine optimale Anbindung, was die Köpenickerstraße 79 zu einem idealen Ort macht, um Berlin in all seinen Facetten zu erleben.
Wir freuen uns auf Ihre Anfrage und beraten Sie gerne!
Köpenicker 79 | WE36
*Die Höhe der Courtage richtet sich nach den, ab dem 23.12.2020 in Kraft getretenen, gesetzlichen Regelungen zur Teilung der Maklercourtage. Hiernach wird die Courtage regelmäßig für beide Parteien (Eigentümer und Käufer) in Höhe von 2,5% zuzüglich Umsatzsteuer in jeweils geltender Höhe, derzeit also insgesamt 2,975% des Kaufpreises einschließlich Umsatzsteuer bei notariellem Vertragsabschluss verdient und fällig. Die Vermittelnden und/oder Nachweisenden, Firma Christian Schulz Immobilien und ggf. deren Beauftragte, erhalten einen unmittelbaren Zahlungsanspruch gegenüber dem Käufer (Vertrag zugunsten Dritter, § 328 BGB). Die Grunderwerbsteuer, Notar- und Grundbuchkosten sind vom Käufer zu tragen. Im Übrigen gelten die Allgemeinen Geschäftsbedingungen. Irrtum und Zwischenverkauf vorbehalten.







