HZD | WE112
Wohn-Perle in bester Schmargendorf-Lage
Wohnung
Diese charmante Eigentumswohnung im 3.OG einer gepflegten Wohnanlage aus dem Jahr 1929 vereint klassischen Charakter mit modernem Komfort. Dank ihrer leicht zurückgesetzten Lage genießen Sie hier ein ruhiges, behagliches Wohnambiente – ein Ort, an dem man sich sofort zuhause fühlt.
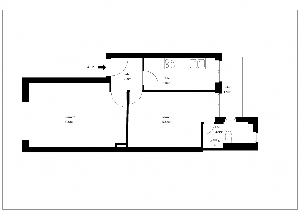
Mit einer Wohnfläche von ca. 45,52 m² überzeugt die 2-Zimmer-Wohnung durch einen durchdachten Grundriss und eine harmonische Raumaufteilung. Das Herzstück bildet das große Zimmer mit rund 17 m², das durch große Fenster mit viel Tageslicht erfüllt wird und eine helle, freundliche Atmosphäre schafft – perfekt zum Entspannen, Träumen und Abschalten.
Das gemütliche Balkonzimmer mit ca. 13 m² lädt zu geselligen Stunden mit Freunden ein. Der Balkon ist nach Westen ausgerichtet und geht zur ruhigen Rückseite mit Blick auf den angrenzenden Tennisverein. Die helle Küche, ebenfalls zur Rückseite ausgerichtet, bietet ausreichend Platz und eine angenehme Atmosphäre – ideal für entspanntes Kochen oder den morgendlichen Kaffee.
Das hell geflieste Duschbad überzeugt ebenfalls mit Tageslicht und einer guten Belüftung durch ein Fenster. Hier verbinden sich Wohnqualität und Wohlfühlcharakter – ideal für Singles, Paare oder Kapitalanleger, die das Besondere suchen.
Grundriss

Lage
Schmargendorf vereint Kleinstadtcharme mit urbanem Lebensgefühl. Hier trifft eine vielseitige Mischung aus eleganten Altbauvillen, Mehrfamilienhäusern und Baustilen der 1960er-Jahre aufeinander – ideal für alle, die Abwechslung schätzen. Grün und aktiv zugleich: Schmargendorf bietet zahlreiche Freizeitmöglichkeiten, von Spaziergängen am Grunewaldsee über Tennisspielen bis hin zu Wintersport im Horst-Dohm-Eisstadion. Frei- und Hallenbäder laden ganzjährig zur Erholung ein. Das Herz des Viertels bildet die Breite Straße mit Einkaufsmöglichkeiten, gemütlichen Restaurants und einem lebendigen Wochenmarkt. Die hervorragende Verkehrsanbindung durch die A100, Bus-, U- und S-Bahn sorgt für kurze Wege in alle Teile Berlins. Schmargendorf steht für entspanntes Wohnen mitten im Grünen – urban, vielseitig, lebenswert!
Wir freuen uns auf Ihre Anfrage und beraten Sie gerne!
HZD | WE112
*Die Höhe der Courtage richtet sich nach den, ab dem 23.12.2020 in Kraft getretenen, gesetzlichen Regelungen zur Teilung der Maklercourtage. Hiernach wird die Courtage regelmäßig für beide Parteien (Eigentümer und Käufer) in Höhe von 2% zuzüglich Umsatzsteuer in jeweils geltender Höhe, derzeit also insgesamt 2,38% des Kaufpreises einschließlich Umsatzsteuer bei notariellem Vertragsabschluss verdient und fällig. Die Vermittelnden und/oder Nachweisenden, Firma Sigrid Schulz Immobilien und ggf. deren Beauftragte, erhalten einen unmittelbaren Zahlungsanspruch gegenüber dem Käufer (Vertrag zugunsten Dritter, § 328 BGB). Die Grunderwerbsteuer, Notar- und Grundbuchkosten sind vom Käufer zu tragen. Im Übrigen gelten die Allgemeinen Geschäftsbedingungen. Irrtum und Zwischenverkauf vorbehalten.






